Обяви За нас Контакти
Продава КЪЩА
област Пловдив, с. Бенковски
287 000 €
561 323.21 лв.

(1 400 €, 2 738.16 лв./m2)
Цената е с включено ДДС
История на цената
Коригирана в 14:45 на 17 ноември, 2025 год.
Обявата е посетена 11 пъти.
Площ:
205 m2
Двор:
600 m2
Строителство:
Тухла, Ще бъде въведен в експлоатация 2025 г.

Описание на имота:


Компания `Х` представя на Вашето внимание къща невероятна нова къща в Бенковски.

МЕСТОПОЛОЖЕНИЕ: В непосредствена близост до Пловдив-само 10км, Бенковски е Вашето мечтано място, където да свиете семейно гнездо-невероятна семейна къща с двор на минути от големият град.
Уединение, чист въздух и благоприятна среда за отглеждането на деца- и това ако не е синоним на синоним на 'успях живота'...

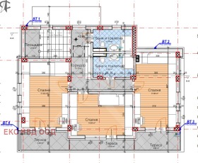
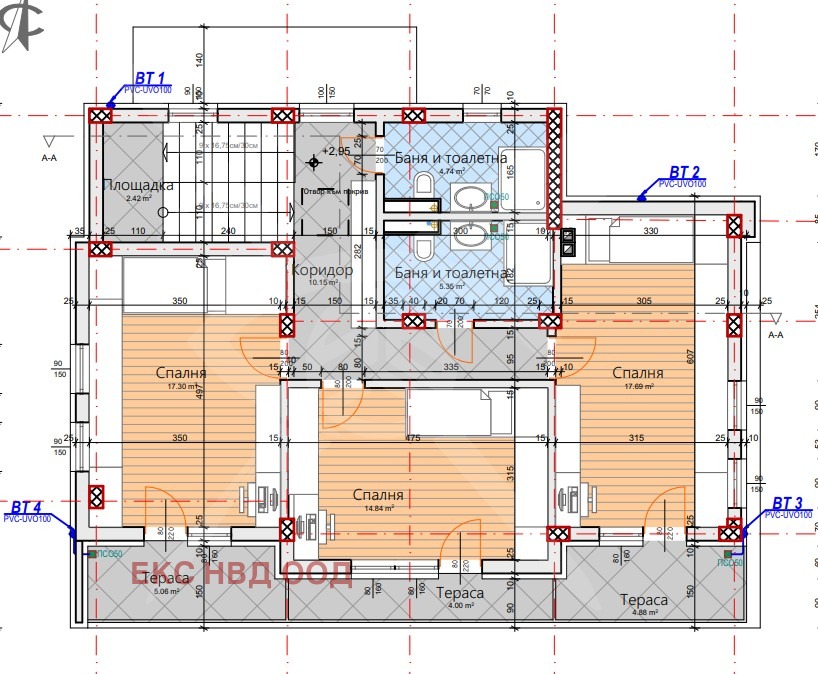
РАЗПРЕДЕЛЕНИЕ: Разполага с площ от 205кв.м., разгърнати в два етажа по следният начин:
Етаж 1: Входно антре, дневна с кухня и трапезария, спалня, баня и тоалетна, перално помещение, килер, невероятна веранда, площадка.
Етаж 2: Коридор, три спални с тераси, две бани с тоалетни, площадка.

Къщата разполага с невероятен двор-600кв.м.

СРОК НА ИЗПЪЛНЕНИЕ: Към май 2025г, строежът е вече стартирал, акт 14 очакваме през септември, а краен срок за изпълнение на проекта с акт 16 е краят на 2025г.

Заповядайте да Ви го покажем. Използвайки нашите услуги Вие ще получите персонален консултант, съдействие при кандидатстване за кредит от всички банки в България и екип, който да се погрижи за нужните документи по Вашата сделка. На Ваше разположение сме всеки ден, от понеделник до неделя от 09:00 до 20:00ч. Възползвайте се от безплатна консултация в наш офис, където ще ви спестим време и ще ви запознаем с всички актуални имоти в България, отговарящи на Вашето търсене. Свържете се с нас на 0887 77 99 90 или на 0884 06 09 90 и цитирайте кода към имота: 1123-32523
Особености
Тухла
За контакт:
0887779990
Агенция:
ЕКС НВД ООД
088777990
ЕКС НВД ООД logo
В imot.bg от 2023 г.
xnvd_plovdiv.imot.bg
Адрес:
област Пловдив, гр. Пловдив, бул. Мария Луиза 43 А
ИЗПРАТИ ЗАПИТВАНЕ
ИЗПРАТИ ЗАПИТВАНЕТО

Продава КЪЩА
област Пловдив, с. Бенковски
Обява: 1j174773233755559

287 000 €
561 323.21 лв.
История на цената
(1 400 €, 2 738.16 лв./m2)

Цената е с включено ДДС
ЗАПАЗИ ОБЯВАТА

Местоположение: област Пловдив, с. Бенковски